Refine Search

Tbd Lot 37 Glenmore Ln, Unit LOT 37, Keswick, VA 22947

$633,234
  • Tbd Lot 37 Glenmore Ln, Unit LOT 37, Keswick, VA 22947 Main Photo

24 Total Photos [Click to View All]

ACTIVE Price Reduced by $17,716 on March 30th, 2026
BEDS3 BATHS2 full SQUARE FEET1,826 MLS#667850
STATUSACTIVE PROPERTY TYPEResidential - Single Family SUBDIVISIONGREEN SPRING ESTATES SCHOOLLOUISA COUNTY PUBLIC SCHOOLS

Property Description

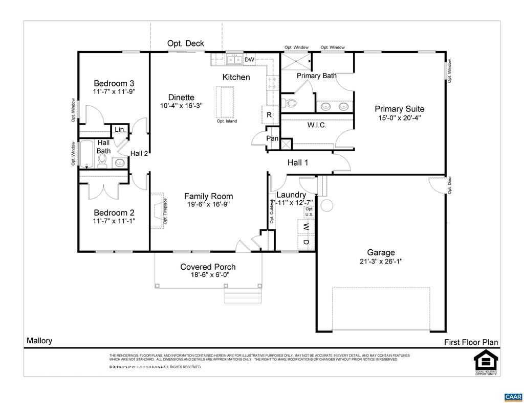
Plan Change. THIS IS A QUICKER MOVE HOME, CONSTRUCTION STARTS MAY '26. For a LIMITED TIME design CAN be chosen, speak with Sales Agent for more information. Welcome to the MALLORY, a charming home offering 1826 sqft INCLUDING A UNFINISHED BASEMENT with rough in full bath, 2-CAR GARAGE on 1.52 acres. Internal stairs to the basement will be located in the mudroom area. Inside, the home opens up to an open living area where the family room, dinette, and kitchen flow together seamlessly. The kitchen offers ample counter space, island, SS appliances and a pantry for your storage needs. The dinette features sliding glass doors leading to the deck. Off the family room, you?ll find the second and third bedrooms, both spacious and inviting and separated by a full bathroom. On the opposite side of the home, the primary suite offers a generously sized bedroom, tray ceiling, large walk in closet and en-suite bath, including walk-in shower, dual vanity, and private water closet. This home will be built in Green Spring Estates, near parks, unique hiking trails, and just a 20-minute drive from Charlottesville. Pictures used for advertising purposes and are not of the house, they may include upgrades, not part of the advertised price.,Granite Counter,Wood Cabinets

Tbd Lot 37 Glenmore Ln, Unit LOT 37 | MLS# 667850

This single family home located at Tbd Lot 37 Glenmore Ln, Unit LOT 37, Keswick, VA 22947 is currently listed for sale with an asking price of $633,234. This property was built in 2026 and has 3 bedrooms and 2 full baths with 1826 sq. ft. Tbd Lot 37 Glenmore Ln, Unit LOT 37 is located in the GREEN SPRING ESTATES subdivision within the LOUISA COUNTY PUBLIC SCHOOLS school district. Search GREEN SPRING ESTATES real estate on www.trevathomasrealestate.com today.

Property Features

Property Type: Residential - Single Family
Basement: Yes
Basement: Full, Interior Access, Partial, Rough Bath Plumb, Unfinished, Windows
Cooling: Heat Pump(s), Other, Energy Star Cooling System, HRV/
Fuel Type: Electric
Heating: Central, Heat Pump(s)
Home Style: Ranch/Rambler
Lot Size: 1.52 Acres
Roof Type: Composite
Stories: 1.0
Taxes: $353
Year Built: 2026

Feature Descriptions

Additional Structures: Above Grade, Below Grade
Appliances: Washer/Dryer Hookups Only, Energy Efficient Appliances
Building Name: GREEN SPRINGS ESTATES PLAT 1811/369-74 LOT 37 PHA
Community Amenities: Tot Lots/Playground
Days on Site: 124
Electric: Underground
Exterior: Vinyl Siding, Blown-In Insulation
Flooring: Carpet, Ceramic Tile
HOA Fee: $250.00/Annually
Interior: Entry Level Bedroom, Primary Bath(s)
Lot: Trees/Wooded
Lot Dimensions: 1.52 Acre(S)
Rooms: Dining Room, Kitchen, Family Room, Breakfast Room, Laundry, Mud Room, Full Bath, Additional Bedroom
Sewer: Approved System
SQFT Above Finished: 1826
SQFT Total Finished: 1826
Structure Type: Detached
Water: Well
Windows: Double Hung, Low-E
Wooded: Yes

Room Sizes

Dining Room: 12 x 16 Level - Main
Family Room: 21 x 17 Level - Main
Breakfast Room: 10 x 14 Level - Main
Laundry: 18 x 12 Level - Main
Additional Bedroom: 12 x 11 Level - Main
Additional Bedroom: 12 x 12 Level - Main
Full Bath: 7 x 17 Level - Main

Local Schools

High School: LOUISA
Middle School: LOUISA
Elementary School: MOSS-NUCKOLS
School District: LOUISA COUNTY PUBLIC SCHOOLS

Listed By / Shown By

Listed By

Agency Name: HOMETOWN REALTY SERVICES - TWIN HICKORY

Shown By

Agent Name: Treva Thomas
Agent Phone: (804) 334-4735
Agency Title: Joyner Fine Properties

IDX logo

Estimate Your Payment

Estimated Payment

$ 3,416.09 per month $3,201.98 Principal & Interest $29.42 Property Tax $184.69 Homeowner's Insurance

Change Payment Information

%
years/fixed
yearly
yearly (est.)
(Payments are an estimate and may vary by lender)
Virginia Credit Union. Find out exactly how much home you can afford. Please contact: LAURA STEVENS. Office: 804-967-2450, Cell: 804-218-7876, Fax: 804-477-1442, laura.stevens@vacu.org, NMLS: 189613

Login to My Homefinder

Pixel